Krbová kamna AQUAFLAM ® 25 s výměníkem - hnědá - sametová, automatická regulace



-2.jpeg?67058f48)
Krbová kamna AQUAFLAM® 25 s výměníkem – hnědá (sametová), s automatickou regulací
Krbová kamna AQUAFLAM® 25 jsou určena pro efektivní vytápění větších prostorů, a to díky svému vysokému výkonu a modernímu designu. Kamna jsou vyrobena z kvalitních materiálů a využívají pokročilé technologie, což zajišťuje jejich dlouhou životnost a spolehlivost. Splňují přísné evropské emisní normy jako BImSchV – Stufe 2, 15a B-VG, DINplus a Flamme Verte.
Ideální volba pro nízkoenergetické a pasivní domy.
Optimální poměr výkonu do vody a do vzduchu
Krbová kamna AQUAFLAM® se vyznačují unikátním konstrukčním řešením, kdy výměník obklopuje spalovací komoru ze všech stran, což umožňuje:
- Vysoký výkon do vody – ideální pro napojení na centrální topný systém
- Minimální výkon do vzduchu – zabraňuje přehřívání místnosti, kde jsou kamna umístěna
Díky tomuto poměru jsou kamna AQUAFLAM® 25 ideální pro efektivní vytápění celého domu prostřednictvím radiátorů nebo akumulační nádrže, aniž by nadměrně ohřívala prostor kolem nich.
Hlavní výhody krbových kamen AQUAFLAM® 25
- Vysoká účinnost 79 % – efektivní využití paliva pro úsporné vytápění
- Bezšamotová technologie – zlepšuje přenos tepla do výměníku bez potřeby vnitřní vyzdívky
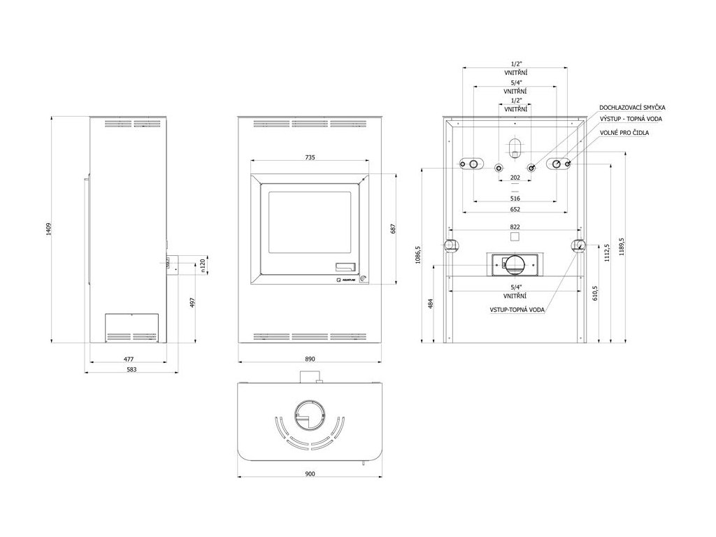
- Externí přívod vzduchu – průměr 120 mm pro přívod vzduchu z venkovního prostředí
- Terciární přívod vzduchu – podporuje dokonalé spalování a udržuje čisté sklo
- Dvojitý oplach skla – předehřátý sekundární vzduch omezuje usazování sazí
- Ochlazovací smyčka – zabraňuje přehřátí topného systému
- 3 bezpečnostní prvky – maximální ochrana pro uživatele i systém
- Demontovatelný rám kamen – usnadňuje instalaci
- Přípojky vody z obou stran – flexibilita při napojení na otopnou soustavu
- Klapka pro regulaci komínového tahu – optimalizuje odtah spalin
Automatická regulace hoření – komfort a bezpečnost
Automatická regulace řídí spalovací proces pomocí vzduchové klapky a řídicí jednotky. Tepelná energie je efektivně odváděna do:
- zásobníku teplé užitkové vody (TUV),
- akumulační nádrže,
- soustavy ústředního topení.
Regulace pracuje s třemi čidly a umožňuje ovládání až tří čerpadel. Díky grafickému displeji máte přehled o aktuálních teplotách a stavu systému.
Automatická regulace je standardně součástí balení, včetně všech potřebných čidel, řídicí jednotky, kabeláže a montážních komponentů pro snadné zapojení a okamžité použití.
Výhody automatické regulace
- Automatické řízení hoření a přívodu vzduchu
- Ovládání celého topného systému
- Úspora paliva a zvýšení efektivity
- Ochrana proti přetopení s akustickým varováním
- Prodloužení životnosti spalovací komory
- Jednoduché uživatelské rozhraní
- Možnost přepnutí letního/zimního režimu
- Podpora vícejazyčného prostředí
- Možnost ovládání dalších zdrojů tepla (např. elektrokotel, plynový kotel)
- Snadná instalace a nastavení dle manuálu
Technické údaje: Krbová kamna AQUAFLAM® 25 s výměníkem – hnědá (sametová), nominální výkon 25 kW.
Vlastnosti: Automatická regulace, vysoký výkon do vody, bezpečnostní prvky, bezšamotová konstrukce.
Obsah balení: Krbová kamna, automatická regulace (řídicí jednotka, čidla, kabeláž), dokumentace, návod k použití.
Doplňkové parametry
| Kategorie: | Krbová kamna s výměníkem |
|---|---|
| Záruka: | 60 |
| Hmotnost: | 228 kg |
| EAN: | 8594155833290 |
| Barva: | hnědá - sametová |
| Délka polen: | 55 cm |
| Distributor pro ČR a SR: | HS Flamingo s.r.o. |
| Dostupnost: | Skladem |
| Elektronická regulace: | Ano |
| Emise CO (Při 13% O2): | 0,1 % |
| Externí přívod vzduchu: | Ano |
| Hmotnost: | 228 kg |
| Jmenovitý výkon celkový: | 25 kW |
| Jmenovitý výkon do vody: | 21 kW |
| Komínová klapka: | Ano |
| Materiál: | ocelový plech 4 a 6 mm |
| Maximální provozní tlak: | 2,5 Bar |
| Norma: | EN 16510-2-1, BlmSchV - Stufe 2, Ekodesign |
| Objem tepelného výměníku: | 36 l |
| Odvod spalin: | horní |
| Ochlazovací smyčka: | Ano |
| Oplach skla: | Ano |
| Palivo: | dřevo, dřevěné brikety |
| Provozní tah: | 12 Pa |
| Průměr externího přívodu vzduchu: | 120 mm |
| Průměrná teplota spalin: | 278 °C |
| Přepravní rozměr palety: | 1050 x 820 mm |
| Přikládání: | přední |
| Regulovatelný výkon: | 21 - 30 kW |
| Regulovatelný výkon do vody: | 19 - 23 kW |
| Rozměr kamen (Š x V x H): | 900x1409x583 mm |
| Rozměr skla (Š x V): | 540 x 410 mm |
| Rozměr topeniště (Š x V x H): | 600 x 415 x 340 mm |
| Sekundární spalování: | Ano |
| Spotřeba paliva: | 7,46 kg/hod |
| Terciární přívod vzduchu: | Ano |
| Třída energetické účinnosti: | A |
| Typ kamen: | teplovodní - dvouplášťová, konvekční |
| Typ skla: | rovné |
| Účinnost: | 78 % |
| Výhřevnost: | 420 - 600 m3 |
| Vývod spalin: | 180 mm |
| Zák. 201/2012 Sb. od 2018: | Ano |
| Záruka: | 5 let |
HS Flamingo - videoklip společnosti
HS Flamingo - videoklip společnosti
Video katalog - Krbová kamna Aquaflam
Diskuze
Buďte první, kdo napíše příspěvek k této položce.
